Jakie dojście do ul. Christo Botewa z II etapu os. Skwer Harmonia w Krakowie (deweloper Atal)

Forum dla osób, które już kupiły, chcą kupić nowe mieszkanie w Krakowie w inwestycji Skwer Harmonia w Krakowie, za którą odpowiada deweloper Atal lub chcą o osiedlu porozmawiać. Zapraszamy do wymiany informacji i opinii na forum.
Pepeg
Posty: 351
Rejestracja: 21 sty 2020, 21:12

Jakie dojście do ul. Christo Botewa z II etapu os. Skwer Harmonia w Krakowie (deweloper Atal)

Postautor: Pepeg » 27 lut 2025, 14:23

Ciekawe czy Atal ma w planie zrobienie jakiejś kładki przez magistrale ciepłowniczą. Jeśli nie to przyszli mieszkańcy Harmoni 2 będą musieli chodzić na około dobre 500 m żeby dojść do ulicy Christo Botewa.

Obrazek

Obrazek


Mar G
Posty: 3846
Rejestracja: 24 sty 2019, 10:20

Re: Jakie dojście do ul. Christo Botewa z II etapu os. Skwer Harmonia w Krakowie (deweloper Atal)

Postautor: Mar G » 27 lut 2025, 14:40

Raczej zrobią przedept przez etap 1.

Wygląda że chcą być jedną z nielicznych lokalizacji w limicie Paszyk +

maciejos7
Posty: 3
Rejestracja: 07 lip 2024, 11:49

Re: Jakie dojście do ul. Christo Botewa z II etapu os. Skwer Harmonia w Krakowie (deweloper Atal)

Postautor: maciejos7 » 22 mar 2025, 19:11

Mar G pisze:Raczej zrobią przedept przez etap 1.

Wygląda, że chcą być jedną z nielicznych lokalizacji w limicie Paszyk +

Ciekawe skąd masz takie informację?
Jak dzwoniłem do działu sprzedaży to powiedzieli, że przedeptu przez I etap nie zrobią :(
Działki (czerwony kolor):

Obrazek

obecnie nie mają. Więc poprowadzenie przejścia przez nią odpada. Zresztą nie widzę, aby przez jej środek szło przejście :P

Z tego co pytałem kładki nie ma obecnie w planach. Nawet projekt na stronie nie uwzględnia przejścia...
Ostatnio zmieniony 20 wrz 2025, 14:59 przez maciejos7, łącznie zmieniany 1 raz.


fredo
Posty: 228
Rejestracja: 25 sty 2016, 22:35

Re: Jakie dojście do ul. Christo Botewa z II etapu os. Skwer Harmonia w Krakowie (deweloper Atal)

Postautor: fredo » 16 wrz 2025, 23:29

I jak, jest jakiś cień nadziei na to, że w tym miejscu powstanie przejście, czy jednak się nie zanosi na takie rozwiązanie. Byłoby to całkiem praktyczne, tylko pytanie czy organizacyjnie jest to wykonalne?

maciejos7
Posty: 3
Rejestracja: 07 lip 2024, 11:49

Re: Jakie dojście do ul. Christo Botewa z II etapu os. Skwer Harmonia w Krakowie (deweloper Atal)

Postautor: maciejos7 » 20 wrz 2025, 15:14

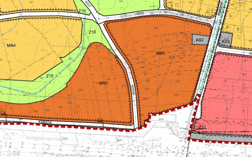
Podrzucam fragment plan zagospodarowania.
Zgodnie z planem między etapem I, a II ma iść droga - pytanie tylko, kiedy (atal jej nie dobuduje)?

Z tego co wiem na pewno, to ma być budowany chodnik w 2026 przez Półanki (wreszcie). Jak sprawdzałem dojście na przystanek zajęło mi około 10 min — tragedii nie ma. Pewnie i tak wszyscy będą przechodzić przez etap I ;)
Załączniki
plan_zagospodarowania.jpeg
plan_zagospodarowania.jpeg (181.45 KiB) Przejrzano 3504 razy



Wróć do „Skwer Harmonia Kraków od Atal - forum mieszkańców osiedla”

Kto jest online

Użytkownicy przeglądający to forum: Obecnie na forum nie ma żadnego zarejestrowanego użytkownika i 0 gości