Budowa II etapu osiedla Strefa Cegielnia w Krakowie (Atal) - zdjęcia i opinie

Forum dla osób, które już kupiły lub chcą kupić nowe mieszkanie w Krakowie w inwestycji Strefa Cegielnia w Krakowie, za którą odpowiada deweloper Atal. Zapraszamy do wymiany informacji i opinii na forum.
Andrii
Posty: 38
Rejestracja: 01 sty 2024, 14:51

Re: Budowa II etapu osiedla Strefa Cegielnia w Krakowie (Atal) - zdjęcia i opinie

Postautor: Andrii » 27 lut 2026, 21:58

blackmailer pisze:I tak nie mogę słać privów... Więc proszę o odpowiedzi osoby, które mieszkają na SC :)

1. Od jak dawna Pan/Pani mieszka na osiedlu? W bloku z etapu 1 czy 2?
2. Generalne pytanie - jak ogólnie się mieszka na osiedlu? Jaki jest klimat, ludzie? Raczej przeważają młode rodziny z dziećmi?
3. Czy hałas z S7 jest uciążliwy? Szczególnie latem przy otwartym oknie?
4. Czy okolica jest raczej bezpieczna? Na forum czytałem coś o różnych pijaczkach kręcących się po okolicy. Jak z oświetleniem w wieczorami?
5. Czy bardzo uciążliwy jest brak większych sklepów spożywczych? Widziałem, że najbliższy Lidl czy Biedronka to ok. 10-12 minut autem. Czytałem o tym, że na Morcinka ma powstać ATUT jeszcze w tym roku, ale na razie pytam o stan obecny :)
6. Czy przy odbiorach było sporo usterek? Jakieś poważniejsze się zdarzyły?
7. Czy miała Pani do czynienia z administracją osiedla/budynku? Jeśli tak, odpowiedź była raczej sprawna, czy musiał/musiała Pan/Pani czekać?
8. Jak z ogrzewaniem? Mijająca zima była pewnie niezłym testem. Kotłownie gazowe dały radę?
9. Ogrzewanie mocno podrożało tej zimy?
10. Jak z terenami spacerowymi w okolicy? Raczej należy się nastawić na ewentualne spacery nad zalew i z powrotem, czy są może jakieś miejsca, których na pierwszy rzut oka nie widać na google maps? :)
11. Czy słychać mocno samoloty? Gdy byliśmy na inwestycji jeszcze we wrześniu mieliśmy okazję trafić na jeden przelatujący bezpośrednio nad osiedlem. Czy to raczej sporadyczne sytuacje?
12. Jak wygląda dojazd w godzinach szczytu? Autem i komunikacją miejską?
13. Czy zdarzają się jakieś awarie?
14. Czy były problemy z samym deweloperem?
15. Czy po jakimś czasie wychodzą jakieś usterki? Pęknięcia, wilgoć?
16. Jak wygląda utrzymanie części wspólnych? Byliśmy 3-krotnie i zawsze było czysto, biorąc pod uwagę, że to tak naprawdę ciągle plac budowy.
17. Jak ze smogiem?
18. Czy w ścianach słychać sąsiadów?
19. Jak wyglądało odśnieżenie dróg zimą?
20. Czy wspólnota działa sprawnie?
21. Czy budowa kolejnego etapu jest bardzo uciążliwa?
22. Co najbardziej Panu/Pani przeszkadza w mieszkaniu tutaj?
23. Co chciałby/chciałaby Pan/Pani wiedzieć przed zakupem, ale nikt Panu/Pani nie powiedział?
24. Czy coś Pana/Panią zaskoczyło po zamieszkaniu?
25. No i chyba najważniejsze... Czy powtórzyłby/powtórzyłaby Pan/Pani decyzję o ponownym zamieszkaniu?


1. Pierwszy etap, prawie dwa lata.

2. Pracuję zdalnie, więc uważam to za bardzo dobrą lokalizację. Wszystko mi odpowiada, wygląda na to, że w najbliższych latach planowane są liczne inwestycje w infrastrukturę w okolicy, więc myślę, że z czasem będzie tu coraz lepiej. Z tego co widzę, mieszkają tu głównie młode rodziny.

3. To chyba zależy od położenia mieszkania. Mnie trasa w ogóle nie przeszkadza, właściwie jej nie słyszę. Za to nad nami lądują samoloty i to bywa dość głośne, ale już się przyzwyczaiłem i śpię nawet przy tym hałasie.

4. Jest tu spokojnie, jeśli nie brać pod uwagę pobliskich budynków dla osób o ograniczonych możliwościach finansowych. Osoby stamtąd często korzystają z komunikacji miejskiej i spacerują po okolicy, zachowują się różnie i czasem nieprzyjemnie pachną. Niestety wielu z nich bywa pod wpływem alkoholu i to zdecydowanie minus.

5. Trzeba planować zakupy i robić je 1–2 razy w tygodniu w większych ilościach. Jeśli coś się zapomni, w pobliżu jest Żabka i jeden dość dziwny lokalny sklep. Auchan dostarcza do nas zakupy w razie potrzeby.

6. U mnie praktycznie nie było usterek.

7. Firma zarządzająca została wybrana przez dewelopera. Nie działa idealnie, ale to dość typowe, z czasem trzeba będzie ją zmienić.

8. Trudno mi odpowiedzieć, coś było nie tak, chyba w jednym z budynków nie działało ogrzewanie, ale mnie to nie dotyczyło, u mnie było ciepło.

10. W okolicy nie znalazłem miejsc do spacerów z odpowiednim chodnikiem. To dla mnie duży minus tej lokalizacji. Na spacery jeżdżę autem do pobliskich parków. Nad zalew pieszo nie lubię chodzić, bo są odcinki bez chodnika i brak przejścia dla pieszych, choć czasem tam chodzę. Idąc w stronę placu zabaw i dalej do wsi, nie ma chodnika i trzeba stale ustępować samochodom, żeby nie iść po błocie.

11. Uważam, że tak. Ale już się przyzwyczaiłem.

16. Jest dość czysto, ale moim zdaniem sprzątanie zapewniane przez dewelopera jest przeciętne i pozostawia wiele do życzenia. Mycie jest powierzchowne i rzadkie, a parkingi myte są w dziwny sposób, bez czyszczenia platform parkingowych, z których składa się większość miejsc w pierwszym etapie. To absurd.

17. Nie gorzej niż w innych częściach Krakowa. Czasem widzę na Google Maps, że w centrum miasta jest czerwono, a u nas żółto. :)

18. Nie tyle słychać głosy czy ogólny hałas, co wszelkie uderzenia mechaniczne, skoki czy przesuwanie mebli. To chyba cecha budownictwa monolityczno-szkieletowego.

22. Najbardziej, poza punktem 23, nie podoba mi się to, że najbliższa okolica rozwija się bardzo powoli. Nie ma żadnych projektów infrastrukturalnych dotyczących naszej ulicy, tylko kilku pobliskich. Nie powstają nowe budynki i okolica nie rozwija się tak szybko, jak bym chciał.

23. Budynki dla bezdomnych w okolicy! Nie wiedziałem o tym i nie rozumiałem, dlaczego metr kwadratowy był tak tani. To ogromny minus, jeśli ma się żonę i dzieci, bo nie daje poczucia bezpieczeństwa i wyklucza dla nich korzystanie z komunikacji miejskiej. Z punktu widzenia inwestycji takie sąsiedztwo, moim zdaniem, zawsze będzie utrzymywać ceny mieszkań w tej okolicy na relatywnie niższym poziomie.

24. To, że sąsiedzi mogą robić remont jeden dzień w tygodniu przez dwa lata. :)

25. Gdyby nie punkt 23, bez wątpienia kupiłbym tu mieszkanie ponownie. Jednak biorąc pod uwagę punkt 23, wybrałbym raczej miejsce z lepszym sąsiedztwem dla bezpieczeństwa i komfortu moich bliskich.


blackmailer
Posty: 6
Rejestracja: 24 lut 2026, 19:40

Re: Budowa II etapu osiedla Strefa Cegielnia w Krakowie (Atal) - zdjęcia i opinie

Postautor: blackmailer » 27 lut 2026, 22:20

Ślicznie dziękuję za tak wyczerpujące odpowiedzi! Bezdomnych tak bardzo "widać" na codzień? Czy to raczej kwestia po prostu mniejszego poczucia bezpieczeństwa wynikająca z samej świadomości, że są w okolicy?

Andrii
Posty: 38
Rejestracja: 01 sty 2024, 14:51

Re: Budowa II etapu osiedla Strefa Cegielnia w Krakowie (Atal) - zdjęcia i opinie

Postautor: Andrii » 27 lut 2026, 22:42

blackmailer pisze:Ślicznie dziękuję za tak wyczerpujące odpowiedzi! Bezdomnych tak bardzo "widać" na codzień? Czy to raczej kwestia po prostu mniejszego poczucia bezpieczeństwa wynikająca z samej świadomości, że są w okolicy?


Nie, nie zauważam ich i nie powodują żadnych niedogodności w moim codziennym życiu ani w życiu moich bliskich, poza tym okresem, kiedy zepsuł mi się samochód i jeździłem z nimi tym samym transportem publicznym :) . Po prostu wywołują u mnie subiektywne poczucie, że na przykład nie puściłbym dziecka samego na spacer wieczorem.


blackmailer
Posty: 6
Rejestracja: 24 lut 2026, 19:40

Re: Budowa II etapu osiedla Strefa Cegielnia w Krakowie (Atal) - zdjęcia i opinie

Postautor: blackmailer » 28 lut 2026, 1:46

Andrii pisze:
blackmailer pisze:Ślicznie dziękuję za tak wyczerpujące odpowiedzi! Bezdomnych tak bardzo "widać" na codzień? Czy to raczej kwestia po prostu mniejszego poczucia bezpieczeństwa wynikająca z samej świadomości, że są w okolicy?


Nie, nie zauważam ich i nie powodują żadnych niedogodności w moim codziennym życiu ani w życiu moich bliskich, poza tym okresem, kiedy zepsuł mi się samochód i jeździłem z nimi tym samym transportem publicznym :) . Po prostu wywołują u mnie subiektywne poczucie, że na przykład nie puściłbym dziecka samego na spacer wieczorem.


Jasne, dzięki.
Zachęcam innych mieszkańców do dzielenia się swoimi przemyśleniami i pozdrawiam :)

blackmailer
Posty: 6
Rejestracja: 24 lut 2026, 19:40

Re: Budowa II etapu osiedla Strefa Cegielnia w Krakowie (Atal) - zdjęcia i opinie

Postautor: blackmailer » 28 lut 2026, 8:51

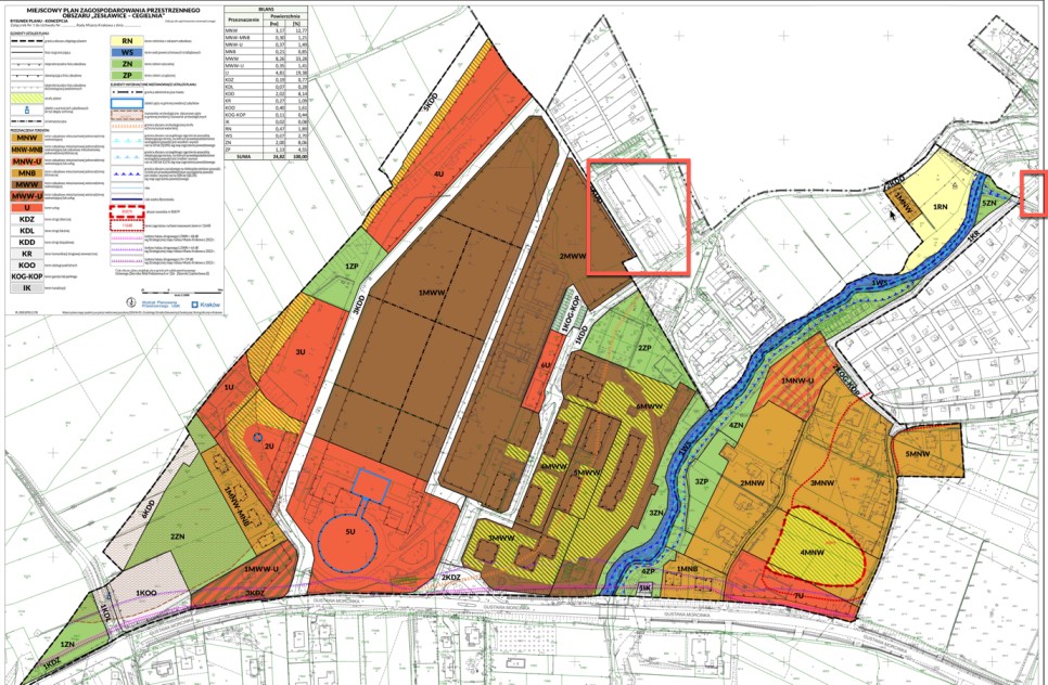
W sumie jeszcze pociągnąłbym temat bezdomnych - które to budynki są dla nich przeznaczone?

Andrii
Posty: 38
Rejestracja: 01 sty 2024, 14:51

Re: Budowa II etapu osiedla Strefa Cegielnia w Krakowie (Atal) - zdjęcia i opinie

Postautor: Andrii » 02 mar 2026, 16:12

Dodaję obrazek
Załączniki
2026-03-02_16-08-04.jpg
2026-03-02_16-08-04.jpg (221.27 KiB) Przejrzano 735 razy

Mercy
Posty: 112
Rejestracja: 16 paź 2023, 13:25

Re: Budowa II etapu osiedla Strefa Cegielnia w Krakowie (Atal) - zdjęcia i opinie

Postautor: Mercy » 02 mar 2026, 19:08

Myślę że jeśli na wstępie masz tyle obaw to będziesz miał duży problem z tą okolicom. Obecnie jest bardzo ciężko, zwłaszcza bez auta. Okolica ma szansę na poprawę ale to potrwa wg. mnie jeszcze z 5 lat.

1) https://youtu.be/6WzSa--k12s?si=dyqhajN4HHKGSavc - tutaj masz filmik, ktoś wszedł do tego bloku socjalnego. Niestety obrzydza ten blok mocno okolice. Mieszkają w nim różni ludzie, nie wszystkich należy wrzucać do 1 gara bo wielu z nich z rana ruszą do pracy, mają auta... ale jednak większość to mocno zniszczeni życiem, alkoholem i używkami ludzie. Często piją w miejscu publicznym lub urządzają małe imprezy pod blokiem.

Gdzieś słyszałem że miasto mysli o wyburzeniu tego bloku 229 i postawienia tam bloków komunalnych, dla ludzi z luką budżetową ale nie ma nigdzie informacji.

2) samoloty są, też się ich bałem ale w większości giną one w ciągu szumu dnia. Nocami natomiast słychać już mocno, zwłaszcza jak jakiś niedobitek przeleci po 12 w nocy. Trzeba to sobie samemu sprawdzić.

Na plus parę dni temu coś ruszyło w kwestii nowej drogi startowej, ma być oddalona nieco na północ więc jest szansa że będzie wtedy nieco ciszej ale to być może i jeśli tak to za x lat.

3) z mpk nie jest źle. Otwarto petle na wzgórzach, dali na 122 większą autobusy, więc jak jedzie nim ktoś "bezdomny" da się uciec:D. Pozatym w godzinach szczytu jeżdżą co 20min, do tego jest 198 który słyszałem że też chcą dać co 20min więc mając autobus co 10min do wzgórz + ewentualną trasę do mistrzejowic mamy 2 huby przesiadkowe w odległości około 10min podróży.

4) sklepy i usługi to ponury zart, nie ma nic na miejscu.

Ale

1> atut zaczął już coś kopać, ma być w tym roku razem z siłownia, apteka, kfc...
2> atal w 4 etapie ma postawić jakieś lokale usługowe, może jakas piekarnia, może lewiatan.... w końcu cośq
3> są aspirscje do przebudowy starej cegielni, ma być hotel ze spa, hala koncertowa pod kopuła, bar na wieży ciśnień i inne cuda na kiju... wygląda to pięknie, jakieś prośby o pozwolenia już widziałem ale myślę że na to jest szansa jak atal skończy całe osiedle może za 5-10lat...
https://www.muratorplus.pl/inwestycje/i ... -r7bf.html


Ogólnie jeśli stać cie na lepsze lokalizacje to chyba bym się tu nie pchał.... jeśli jesteś cierpliwy i cena gra główna rolę to jakiś potencjał jest. Myślę że od bardzo głośnej przez samoloty zielonkowej północy, za złocieniowych Czarnochowic, opatkowic czy nawet i klinów może być to fajna opcja, do huty można dojechać nawet w 15min autobusami (mój rekord) a nawet i w godzinkę dojść na piechotę.



Wróć do „Strefa Cegielnia Kraków od Atal - forum mieszkańców osiedla”

Kto jest online

Użytkownicy przeglądający to forum: Obecnie na forum nie ma żadnego zarejestrowanego użytkownika i 1 gość